Villa a schiera in vendita

Molinella, Via Provinciale Superiore - San Martino In Argine
€ 204.000
4 locali 4 locali
145 Mq 145 Mq
2 bagni 2 bagni

Villa a schiera in vendita

Molinella, Via Provinciale Superiore - San Martino In Argine

Descrizione annuncio

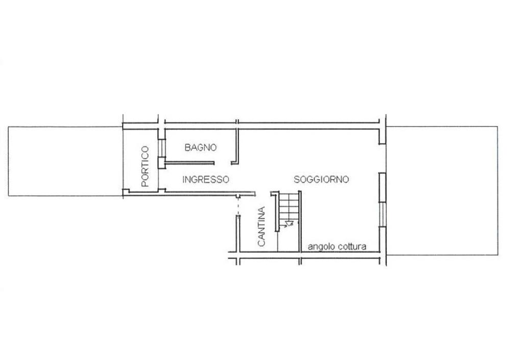
Nel comune di Molinella, nella tranquilla località di San Martino in Argine, è disponibile una villa a schiera in vendita. La villa si sviluppa su tre livelli e comprende quattro locali ben distribuiti. La zona giorno è caratterizzata da ampie finestre che garantiscono una luminosità naturale, creando un'atmosfera calda e invitante. La proprietà dispone di tre camere da letto e due bagni, ideali per famiglie o per chi desidera uno spazio aggiuntivo per ospiti o per un ufficio domestico. Situata in una zona residenziale tranquilla, la villa offre la possibilità di vivere lontano dal caos cittadino, pur rimanendo ben collegata ai principali servizi. Una soluzione abitativa che coniuga comfort e funzionalità in un contesto sereno.

Mostra tutto

Nelle vicinanze

Trasporto pubblico Trasporto pubblico
Guarda
Guarda
3,0 Km
SAN MARTINO IN ARGINE - CASERMA CARABINIERI
SAN MARTINO IN ARGINE - CASERMA CARABINIERI
120 m
SAN MARTINO IN ARGINE - CENTRO
SAN MARTINO IN ARGINE - CENTRO
450 m
Ristoranti Ristoranti
Antica Osteria dei Casoni
2,4 Km
Mostra tutto

Caratteristiche

Rif.:
61173027
Piano:
3 di 2 (Piano su più livelli)
Box:
1
Posti auto:
2
Balconi:
1
Camere da letto:
3
Mostra tutto
Prezzo Prezzo
€ 204.000
Rata mutuo Rata mutuo
€ 961 / mese
Spese annue Spese annue
€ 0
Proponi il tuo prezzoProponi il tuo prezzo
Immobile valutato con T·Valuta

Classe Energetica

G
G
G
G
G
G
G
G
G
EP globale non rinnovabile:
300.00 kW h/m² anno
EP globale rinnovabile:
5.20 kW h/m² anno
EP invernale del fabbricato:
EP estiva del fabbricato:
Anno di costruzione:
2004
Riscaldamento:
Autonomo
Tipo impianto:
A radiatori
Tipo alimentazione:
Metano

Ti interessa visionare l'immobile?

Fissa un appuntamento  Fissa un appuntamento

Richiedi informazioni

Clicca su Leggi per aprire l'informativa
* Questi campi sono obbligatori

Calcola il tuo mutuo

Semplice e senza impegno
Anticipo

( % )
Mutuo

( % )

pochi semplici passi

inserisci i tuoi dati
Questionario completato
Grazie per aver richiesto un appuntamento senza impegno con un nostro Consulente del Credito e Assicurativo.

Hai inserito correttamente tutti i dati necessari e a breve riceverai una e-mail con un link da convalidare per inviare i tuoi dati.
Affiliato
Azienda.net Srl
Via Mazzini, 185 40062 Molinella (BO)

Il nostro staff


  • Mauro Frazzoni
    Affiliato

  • Gaetano D'Oria
    Responsabile

  • Angela Tursi
    Coordinatrice

  • Consuela Forleo
    Responsabile

  • Stefano Galletti
    Affiliato

  • Chiara Anselmo
    Collaboratrice
Via Mazzini, 185 40062 Molinella (BO)
Zona: Molinella e frazioni-S.Maria Codifiume-Traghetto-Ospital Monacale-S.Nicolò
Mostra su mappa
Orari: dal lunedi al venerdi 09:00-13:00 e 15:00-20:00 sabato chiusura alle 13:00
Affiliato
Azienda.net Srl
Via Mazzini, 185 40062 Molinella (BO)

2026 Tecnocasa Franchising S.p.A. - P. IVA 08365160152 - Via Monte Bianco 60/A 20089 Rozzano (MI). Ogni agenzia ha un proprio titolare ed è autonoma. Privacy policy | Policy utilizzo | Cookie policy